尚未登入會員
揚京快客網路科技公司
購物車
0
匯款通知
test4
長形
方形
熱銷商品
最新商品
促銷商品
設計作品管理
全部作品
住宅設計
現代簡約
日式無印
北歐自然
工業風
輕奢質感
侘寂禪風
商空設計
現代商業
復古懷舊
精品質感
診所設計
民宿設計
日式侘寂
北歐自然
鄉村田園
工業復古
渡假療癒
商品介紹
衣服
123
親子裝
女裝
男裝
童裝
10
11
12
13
14
15
16
17
18
20
22
耐磨木地板
CHATEAU+夏樂系列
TRENDLINE趨勢+系列
OCEAN+水悅+系列
OCEAN+ XL水悅+XL系
LIVE森活系列
頂級spc卡扣地板
頂級spc卡扣地板 | 基本款
頂級spc卡扣地板 | 4V PRO
頂級spc卡扣地板 | 4V ULTRA
懶骨頭沙發
長形
方形
熱銷商品
最新商品
促銷商品
衣服
123
親子裝
女裝
男裝
童裝
熱銷商品
最新商品
促銷商品
#SPC4V | 頂級spc卡扣地板4V ULTRA-格陵蘭白橡木
#SPC4V-ULTRA | 頂級spc卡扣地板4V ULTRA-維也納淺橡木
COLOR系列 | 親子裝-彩虹團體絲綢感吸濕排汗T恤 (多色/不同尺寸)
COLOR系列 | 親子裝-彩虹團體絲綢感吸濕排汗T恤 (多色/不同尺寸)
COLOR系列 | 親子裝-彩虹團體絲綢感吸濕排汗T恤 (多色/不同尺寸)
COLOR系列 | (女-多色/不同尺寸)彩虹團體絲綢感吸濕排汗T恤
COLOR系列 | (女-紅色)彩虹團體絲綢感吸濕排汗T恤
COLOR系列 | (女-卡其)彩虹團體絲綢感吸濕排汗T恤
新相簿1
全部
室內作品一
室內作品二
室內作品三
室內作品四
室內作品五
新相簿2
全部
靜
動
慢
設計影音
全部
耐磨木地板
懶骨頭沙發
文章管理1
裝修攻略
裝前評估
風格靈感
裝修知識
空間設計
接案風格
現代風
美式風
日式風
中式風(
北歐風
古典風
工業風
鄉村風
混搭風
文章管理2
木地板知識
超耐磨木地板
塑膠地板
拋光石英磚
SPC地板:防水、防潮、超耐磨
風格靈感
素境Pure Space
首頁
>
設計作品管理
> 素境Pure Space
分享
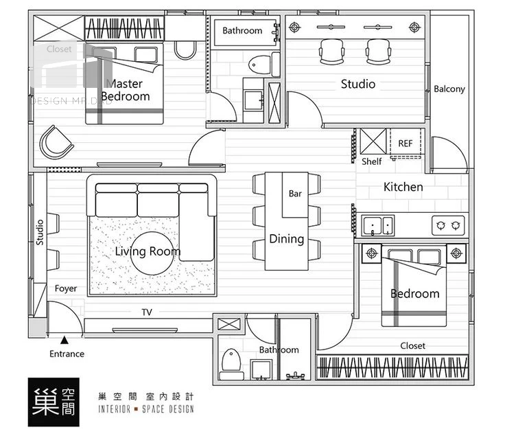
素境Pure Space
去除多餘,只留下真正需要的空間本質
分類
住宅設計 日式無印
屋況
居家設計
風格
日式風
縣市
南投縣國姓鄉
預算
301~400萬
坪數
41~50坪
4房
2廳
3衛
❮
❯
純粹,是最難的設計 少一點設計,多一點生活
「素境」是一場關於取捨的設計實驗。面對較大的坪數條件,設計並未選擇堆疊元素或強調形式,而是回到居住本身,重新思考每一個空間存在的必要性。透過明確的機能劃分與清晰動線,讓家在使用上自然順暢,不被形式所綁架。
整體風格以現代簡約為主軸,大面留白搭配細節收斂的材質運用,使空間在視覺上顯得安定且從容。牆面與櫃體以一致色系整合,減少界線感,讓空間尺度更為開闊。地坪與立面材質延續相同語彙,營造整體一致的空間氛圍。
照明設計以功能與情境並重,公共區域強調均勻光感,私領域則降低亮度,營造放鬆感受。每一道光線皆為生活而設,而非裝飾。
「素境」並非空無,而是在留白之中,讓居住者的生活軌跡自然發生,成為真正屬於人的空間。
上個作品
下個作品
回總覽
上個作品
下個作品
回總覽
店家其他作品
TOP
回首頁
匯款通知
購物車
(0)