尚未登入會員
揚京快客網路科技公司
購物車
0
匯款通知
test4
長形
方形
熱銷商品
最新商品
促銷商品
設計作品管理
全部作品
住宅設計
現代簡約
日式無印
北歐自然
工業風
輕奢質感
侘寂禪風
商空設計
現代商業
復古懷舊
精品質感
診所設計
民宿設計
日式侘寂
北歐自然
鄉村田園
工業復古
渡假療癒
商品介紹
衣服
123
親子裝
女裝
男裝
童裝
10
11
12
13
14
15
16
17
18
20
22
耐磨木地板
CHATEAU+夏樂系列
TRENDLINE趨勢+系列
OCEAN+水悅+系列
OCEAN+ XL水悅+XL系
LIVE森活系列
頂級spc卡扣地板
頂級spc卡扣地板 | 基本款
頂級spc卡扣地板 | 4V PRO
頂級spc卡扣地板 | 4V ULTRA
懶骨頭沙發
長形
方形
熱銷商品
最新商品
促銷商品
衣服
123
親子裝
女裝
男裝
童裝
熱銷商品
最新商品
促銷商品
#SPC4V | 頂級spc卡扣地板4V ULTRA-格陵蘭白橡木
#SPC4V-ULTRA | 頂級spc卡扣地板4V ULTRA-維也納淺橡木
COLOR系列 | 親子裝-彩虹團體絲綢感吸濕排汗T恤 (多色/不同尺寸)
COLOR系列 | 親子裝-彩虹團體絲綢感吸濕排汗T恤 (多色/不同尺寸)
COLOR系列 | 親子裝-彩虹團體絲綢感吸濕排汗T恤 (多色/不同尺寸)
COLOR系列 | (女-多色/不同尺寸)彩虹團體絲綢感吸濕排汗T恤
COLOR系列 | (女-紅色)彩虹團體絲綢感吸濕排汗T恤
COLOR系列 | (女-卡其)彩虹團體絲綢感吸濕排汗T恤
新相簿1
全部
室內作品一
室內作品二
室內作品三
室內作品四
室內作品五
新相簿2
全部
靜
動
慢
設計影音
全部
耐磨木地板
懶骨頭沙發
文章管理1
裝修攻略
裝前評估
風格靈感
裝修知識
空間設計
接案風格
現代風
美式風
日式風
中式風(
北歐風
古典風
工業風
鄉村風
混搭風
文章管理2
木地板知識
超耐磨木地板
塑膠地板
拋光石英磚
SPC地板:防水、防潮、超耐磨
風格靈感
光序之家Order of Light
首頁
>
設計作品管理
> 光序之家Order of Light
分享
光序之家Order of Light
以光為設計主軸,梳理空間秩序,讓生活隨著光線流動。
分類
住宅設計 現代簡約
屋況
居家設計
風格
現代風
縣市
台南市關廟區
預算
201~300萬
坪數
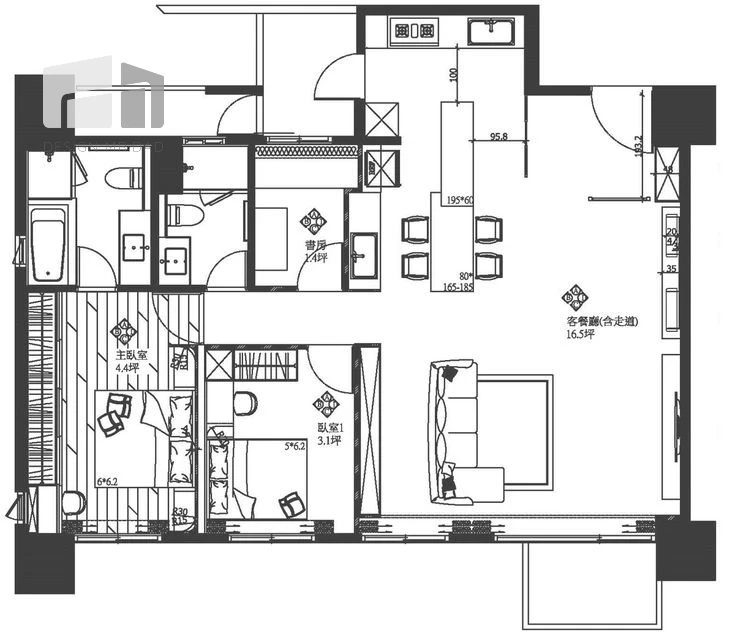
21~30坪
3房
2廳
2衛
❮
❯
讓自然成為最好的設計師
本案從自然採光條件出發,將「光的行進路徑」視為空間配置的重要依據。設計初期即重新調整隔間比例,使公共空間完整迎接日照,客廳、餐廳與書房形成一條連續的光軸,讓光線成為串聯空間的隱性結構。
風格上採現代簡約為基底,材質選用低彩度石材、霧面烤漆與淺色木皮,讓光線在不同表面上產生細膩變化。櫃體與牆面以水平與垂直線條構成,強化空間秩序,同時避免多餘裝飾干擾視覺焦點。收納機能隱藏於立面之中,使整體畫面保持純粹。
照明設計刻意弱化主燈存在,改以線性與間接照明補足夜間需求,延續白天光感層次。透過光的節奏變化,空間在不同時段展現不同表情,卻始終維持穩定與舒適。
上個作品
下個作品
回總覽
上個作品
下個作品
回總覽
店家其他作品
TOP
回首頁
匯款通知
購物車
(0)